fr

Votre recherche

Nice (06100)

171,45 m²

Ensemble immobilier avec plusieurs logements et extérieurs – Idéal investissement ou projet familial

560 000 €
Ref : VAP1060
Découvrir le bien

À découvrir, un ensemble immobilier, situé dans un environnement calme, offrant de multiples possibilités d’aménagement, d’habitation ou de rendement locatif.

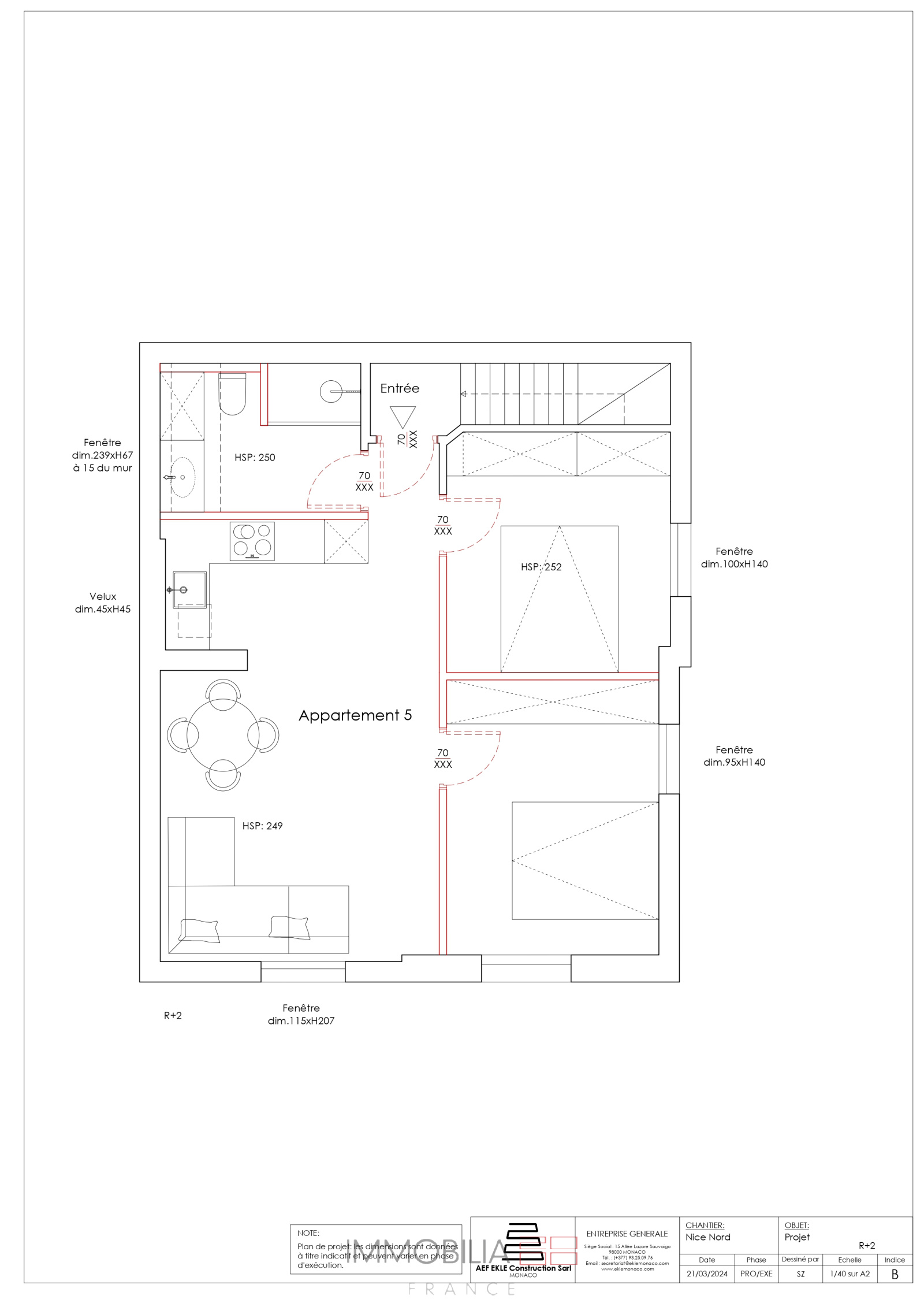
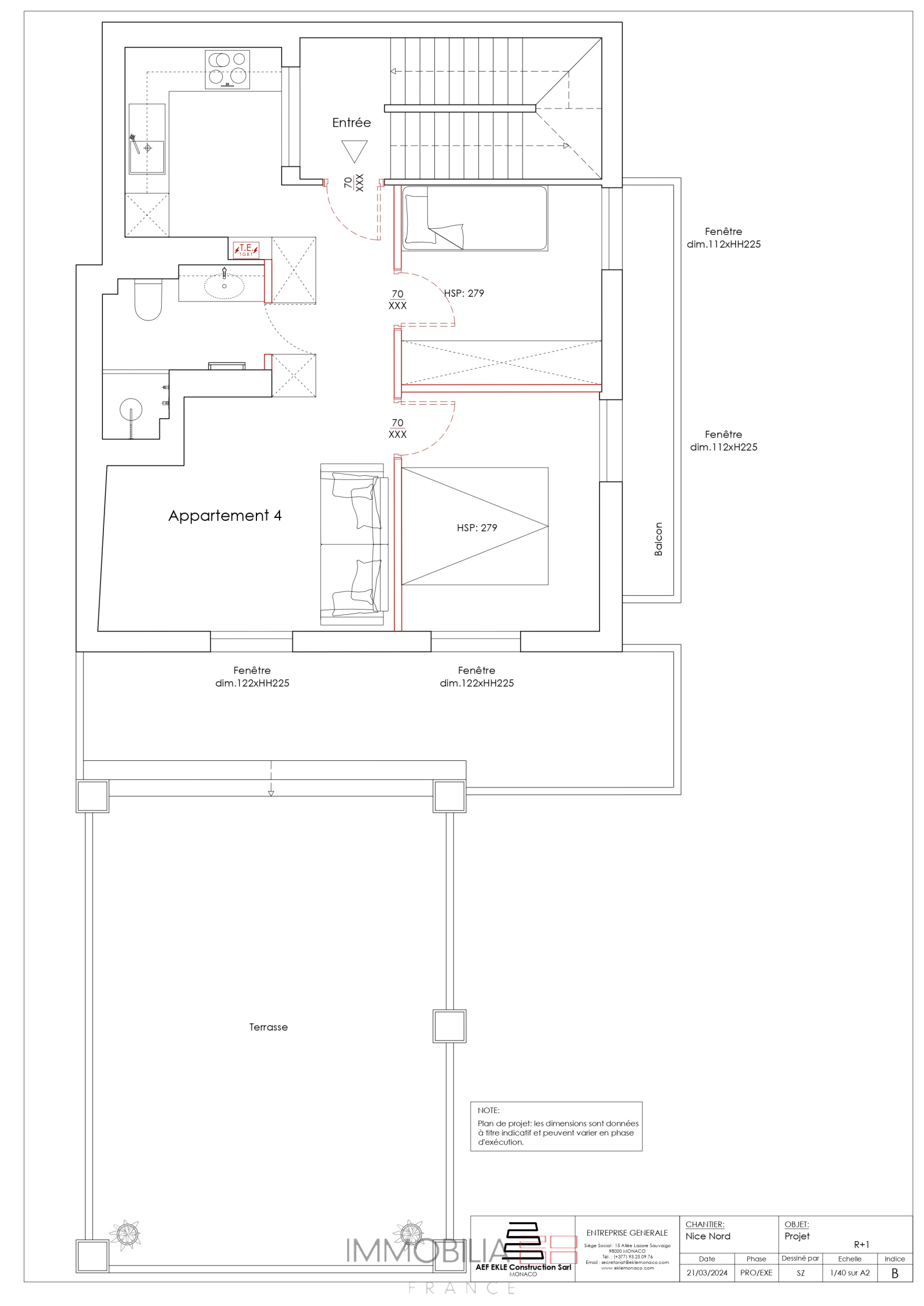
Le bien comprend :

  • Une cour intérieure, un passage privatif, un lavoir, et un jardinet offrant un cadre extérieur agréable.

  • Une maison principale en maçonnerie traditionnelle, élevée de deux étages sur rez-de-chaussée, comprenant :

    • Au Rez de chaussée: un appartement de 3 pièces divisible avec jardin

    • Au 1er étage : un appartement de 3 pièces divisible, cuisine, salle d’eau et grande terrasse.

    • Au 2e étage : un appartement mansardé de 3 pièces pouvant également être découpé en 3 unités, cuisine et salle de bains.

Un bien rare offrant un fort potentiel, idéal pour un investisseur à la recherche de plusieurs lots locatifs sur une seule parcelle dans un quartier dynamique.

Opportunité à saisir rapidement. Dossier complet sur demande.

TRAD_ZEPHYR_Caracteristique TRAD_ZEPHYR_Valeurs
Code postal 06100
Surface habitable (m²) 171,45 m²
Nombre de niveaux 3
TRAD_ZEPHYR_Caracteristique TRAD_ZEPHYR_Valeurs
Mode de chauffage Electrique
Type de chauffage Air pulsé
Format de chauffage Individuel
Terrasse OUI
Cave NON
TRAD_ZEPHYR_Caracteristique TRAD_ZEPHYR_Valeurs
Copropriété OUI
TRAD_ZEPHYR_Caracteristique TRAD_ZEPHYR_Valeurs
Prix de vente 560 000 €
Les honoraires d'agence seront intégralement à la charge du vendeur  
DPE GES
Contacter pour ce bien
L'agence
Téléphone 04.93.51.98.86
Adresse
4/6 boulevard de la République 06240 Beausoleil

* Champ obligatoire

Les informations recueillies sur ce formulaire sont enregistrées dans un fichier informatisé par La Boite Immo agissant comme Sous-traitant du traitement pour la gestion de la clientèle/prospects de l'Agence / du Réseau qui reste Responsable du Traitement de vos Données personnelles.
La base légale du traitement repose sur l’intérêt légitime de l'Agence / du Réseau.
Elles sont conservées jusqu'à demande de suppression et sont destinées à l'Agence / au Réseau.
Conformément à la loi « informatique et libertés », vous pouvez exercer votre droit d'accès aux données vous concernant et les faire rectifier en contactant l'Agence / le Réseau.
Si vous estimez, après avoir contacté l'Agence / le Réseau, que vos droits « Informatique et Libertés » ne sont pas respectés, vous pouvez adresser une réclamation à la CNIL.
Nous vous informons de l’existence de la liste d'opposition au démarchage téléphonique « Bloctel », sur laquelle vous pouvez vous inscrire ici : https://www.bloctel.gouv.fr 
Dans le cadre de la protection des Données personnelles, nous vous invitons à ne pas inscrire de Données sensibles dans le champ de saisie libre
Ce site est protégé par reCAPTCHA, les Politiques de Confidentialité et les Conditions d'Utilisation de Google s'appliquent.

Découvrir nos outils